erweiterung schreinerwerkstatt

Gebäude_Schreinerei von 1975/1988

Schutzstatus_Baugruppe A - ISOS Erhaltungsziel B

Auftraggeber_Schreinerei Eichenberger

Leistungen_Projektentwicklung

Zeitrahmen_2022

Der Viehschauplatz bildet das markante Zentrum der Gemeinde Trub. Die stattlichen Bauten um den Platz sind nach dem Dorfbrand von 1838 entstanden und schaffen eine eindrückliche Kulisse. Das historische Krämerhaus von 1842 (oben links im Bild) war Schauplatz im Film "Die Herbstzeitlosen" und beinhaltet heute Ausstellungsräume, Büros, Wohnungen und einen Teil der Schreinerei. Gleich anschliessend (oben mittig im Bild) wurde in den 70er Jahren ein Neubau für die Schreinerwerkstatt erstellt und 1988 auf der südlichen Giebelseite erweitert. 

 


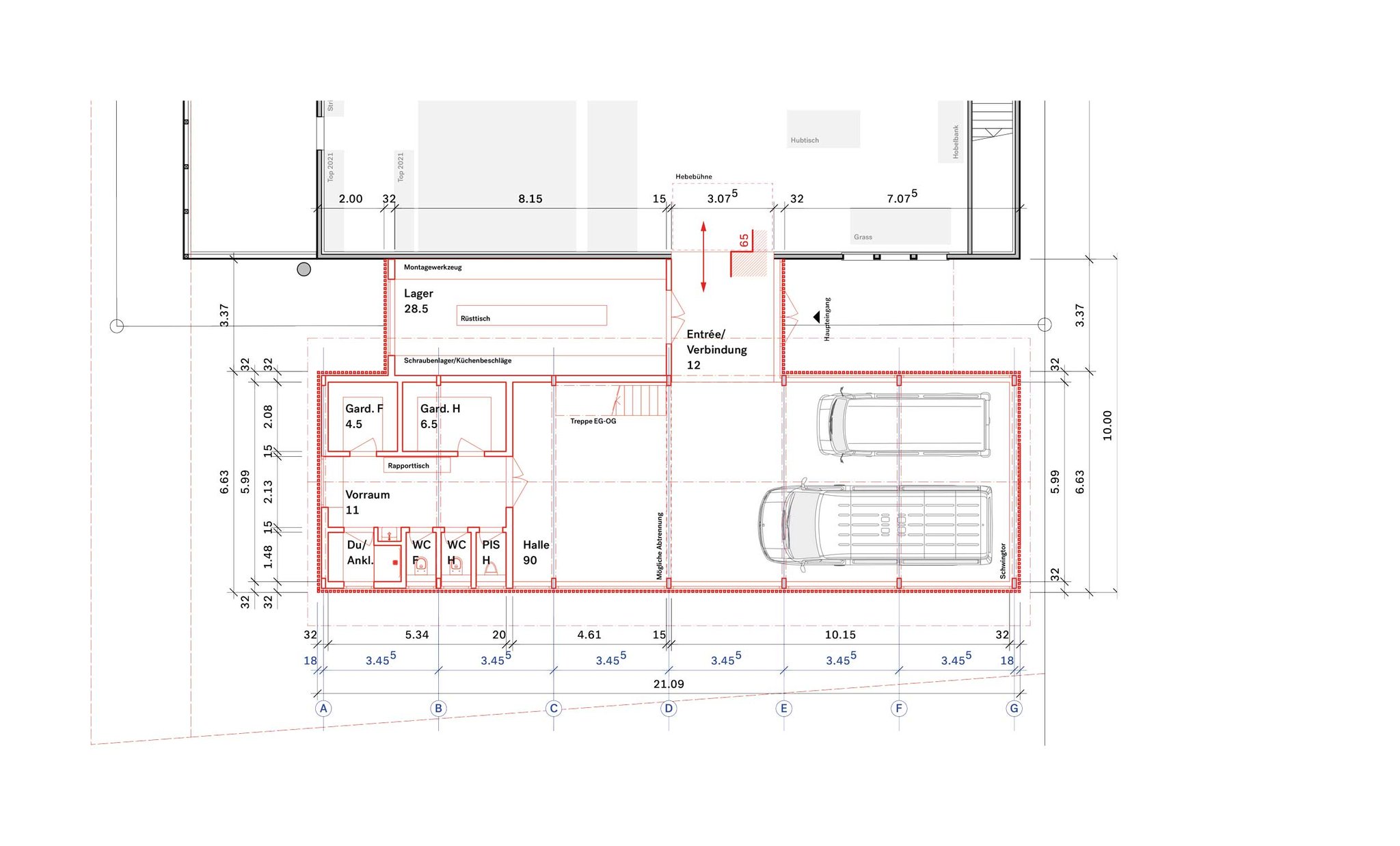
Heute sind die Bedürfnisse der Schreinerei nicht mehr kompatibel mit der bestehenden Halle. Ein neues Volumen soll nun Raum für Personal-, Lager- und Einstellräume für Fahrzeuge bieten.

Das Erweitern der Schreinerei wird auf der Ostseite verfolgt. Durch das Setzen eines weiteren Riegels wird der neue Körper als Teil der bestehenden Schreinerei gelesen und gibt dem Viehschauplatz zusätzlichen Halt. 

In einer Volumenstudie wurden verschiedene Typologien durchgespielt. Daraus hat sich ein Ansatz herausentwickelt, welcher als kleiner Bruder des Hauptgebäudes angeschaut werden kann. Das verbindende Volumen wird im Übergang zurückgezogen um eine Fuge zwischen Alt und Neu auszubilden und beiden Volumen eine Eigenständigkeit zu ermöglichen. Der Erweiterungsbau wird als reiner Holzbau umgesetzt. Ein umlaufender Lamellenfilter schafft einen geschlossenen und schlanken Raumkörper. 



Nebst dem neuen Erweiterungsbau soll auch das verunklärte Hauptgebäude bereinigt werden um einen harmonischen Gesamtkörper zu schaffen.