neubau osz - ins

Verfahren_Projektwettbewerb im selektiven Verfahren nach SIA142 

Architektur_ARGE Atelier Marcel Hegg und Roesti & Pereira Gmbh, Bern

Landschaftsarchitektur_Weber & Brönnimann AG, Bern

Visualisierung_VINN Gmbh, Solothurn

Zeitrahmen_Herbst 2021

Idee

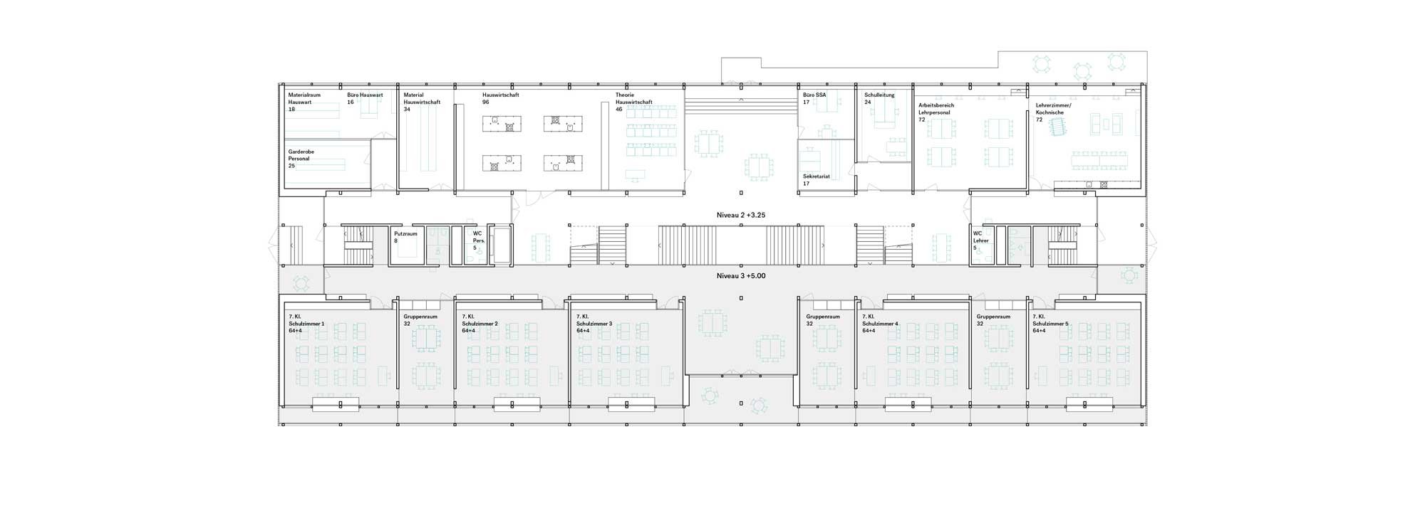
Alle Hauptnutzflächen der Schule werden in einem einzigen kompakten Neubau untergebracht, der auf der nördlichen Seite des Allwetterplatzes in die orthogonale Struktur der bestehenden Anlage eingesetzt wird.

Als Basis des Oberstufenzentrums soll der Allwetterplatz fungieren. Durch die Anordnung der neuen Nutzungen wird er ins Zentrum der Schule gerückt und nimmt eine wichtige, vereinende Ebene in der campusartigen Schulanlage ein.

Formal ist der Neubau an den bäuerlichen Kontext von Ins angepasst und auf den bestehenden Bau der Turnhalle abgestimmt. Es entsteht ein Campus der in seiner Art an eine traditionelle Weiler-Baugruppe erinnert und die Entwicklung des Vielfingerdorfes selbstverständlich fortschreibt.

Die vorhandene Topografi e bleibt aus ökonomischen und gestalterischen Gründen möglichst unverändert.

 

Topografie

Auf die Hanglage wird mit einem Split Level eingegangen. Im Zusammenhang mit Hangwasser sind keine kostspieligen Untergeschosse vorgesehen. Das Gebäude wird also möglichst subtil auf das bestehende Gelände aufgesetzt, an den natürlichen Terrainverlauf angepasst und an die vorhandene Infrastruktur (Turnhalle und Allwetterplatz) angeschlossen.

 

Organisation

Das kompakte Gebäude ist in Längsrichtung in drei Raumschichten (Schulraum–Erschliessung–Schulraum) unterteilt. Der mittleren kommt dabei die wichtige Rolle der Erschliessung zu. Zudem werden hier unterschiedliche nischenartige Arbeits- und Aufenthaltsbereiche für individuelles Lernen angeordnet. Dieser Bereich wird über das zentrale Oblicht und über die Fassade grosszügig mit Tageslicht versorgt. Über das Atrium öffnen sich vielfältige Sichtbeziehungen. Das Gemeinschaftsgefühl wird dadurch gefördert.


Statik, Flexibilität und Erweiterbarkeit

Mit Ausnahme der Erschliessungskerne und der Liftschächte ist die gesamte Konstruktion über Terrain als vorgefertigter Holzelementbau konzipiert. Als Geschossdecken und Dachelemente kommen verleimte Hohlkastendecken zur Anwendung. In den Elementhohlräumen wird als bauakustische Massnahme eine Splittschüttung eingebaut. Zudem können auch haustechnische Installationen in den Hohlkästen integriert werden. Ein Zementunterlagsboden bringt Masse für den sommerlichen Wärmeschutz in das Gebäude. Die Decken ruhen auf einer Skelettkonstruktion aus Querträgern und Stützen, die in einem regelmässigen und wirtschaftlichen Raster angeordnet sind. Die Gebäudeaussteifung erfolgt über die Treppenhäuser und den Liftschacht.

Das statische Raster leitet sich aus den Raumgrössen für die Klassenzimmer und die Gruppenräume ab. Die nichtragenden Zimmertrennwände können einfach demontiert oder verschoben werden und ermöglichen eine maximale Grundriss und Nutzungsflexibilität.

 

Die Möglichkeiten für eine spätere Erweiterung ergeben sich folgerichtig ebenfalls aus dem rasterartigen Aufbau. Bei Bedarf können seitlich zusätzliche Räume angehängt werden.Die Logik des Campus wird so fortgeschrieben.


Über das Atrium werden vielfältige Sichtbeziehungen zwischen den Halbgeschossen offen gehalten. Der Klassenzusammenhalt wird dadurch gefördert.