küherhaus bellerive

Gebäude_Ehem. Küherhaus des Landsitzes "Bellerive", ca. 1730 

Schutzstatus_Schützenswert K-Objekt, Bundesschutz seit 1989

Auftraggeber_Privat

Leistung_Planung

Ausführung_Bauherr

Status_fertiggestellt 2025

 

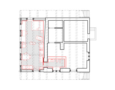
Von der Schreinerwerkstatt zum Wohnraum - Das Holz bleibt das prägende Material.

Die Studiowohnung schafft auf kleiner Fläche mit raffinierten Schreinerlösungen eine grosszügige, attraktive Wohnatmosphäre. Das positive Raumklima mit den natürlichen Holzoberflächen und dem Blick in den Garten macht die Einzimmerwohnung zu einer kleinen Oase. 



Die ehemalige Schreinerei wird mit einem Ausbau in Holz zur Studiowohnung. Restbestände aus dem Holzlager konnten für den Innenausbau verwendet werden.

Die Kücheneinrichtung, die Schrankfronten, sowie der Arbeitsbereich werden zum integralen Teil der Architektur und schaffen eine ruhige Atmosphäre. Der Boden bildet mit einem mineralischen Spachtelbelag einen sanften Kontrast zu den Holzoberflächen. Die Nasszelle wurde als minimaler Raumkörper über die bestehende Verbindungstüre in die Waschküche eingesetzt. 



Mit der neuen, erweiterten Wohnraumnutzung muss der Garten und die Parkierung angepasst werden. Dabei dienen die historischen Planunterlagen des Bonstettenguts als Referenz und führen zu einer klaren, räumlichen Struktur für die Autoabstellplätze, Gartenflächen der beiden Wohnungen, Gemüsegarten und Gewächshaus.